Page suivante
Page précédente
Carignan-de-Bordeaux (33360)

Terrain Ă  batir

279 000 €
Réf 3

Terrain à bâtir viabilisé – 1504 m² – Carignan-de-Bordeaux (33360) – Proche Bouliac Situé sur la commune recherchée de Carignan-de-Bordeaux, à quelques minutes seulement de Bouliac et de Bordeaux, découvrez ce beau terrain à bâtir de 1504 m² entièrement viabilisé, offrant un cadre naturel privilégié.

-Implanté route de Fargues, le terrain bénéficie d’un accès facile et rapide aux axes principaux, tout en étant agréablement protégé par un espace boisé qui crée un véritable écran naturel et préserve l’intimité du lieu.

-Les atouts du terrain : • Superficie généreuse : 1504 m² • Terrain viabilisé ( chemin d’accès réalisé) • Espace boisé apportant charme et protection naturelle • Environnement résidentiel recherché • Proximité Bouliac, Bordeaux, commodités, Collège de renom.

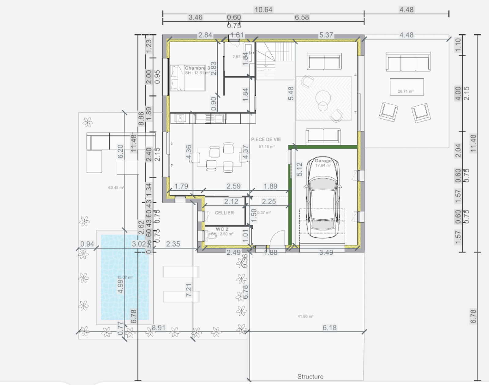
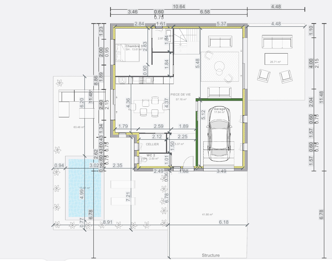
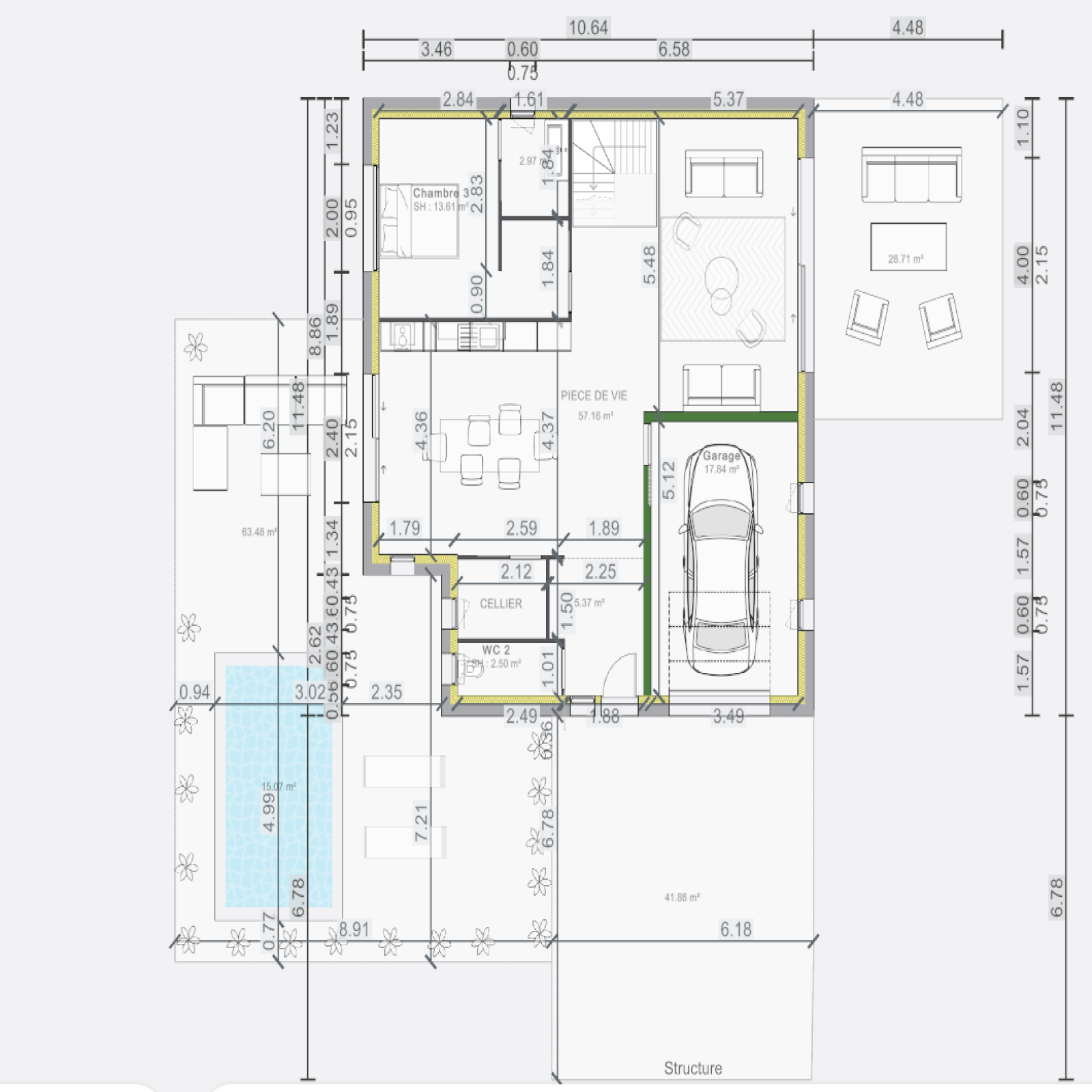
- Un projet déjà imaginé en complète harminie avec le terrain si vous le souhaitez.... Les photos de 4 à 7, vous découvrirez une étude de faisabilité réalisée par Syell Immobilier, pensée pour exploiter pleinement les qualités du terrain. Le projet propose une maison contemporaine ouverte sur la nature, avec de larges ouvertures et des espaces de vie tournés vers l’extérieur, créant une sensation de vivre dedans-dehors au quotidien, que ce soit dans les pièces de vie ou aux étages. Une architecture conçue pour profiter de la lumière, du cadre boisé et offrir une qualité de vie rare aux portes de Bordeaux.

-Terrain libre de constructeur : Vous êtes totalement libre de réaliser le projet de maison qui correspond à vos envies et avec qui vous voulez.

-Une belle opportunité de construire votre maison dans un environnement naturel tout en restant proche de la métropole bordelaise.

-Pour plus d’informations ou organiser une visite, contactez Syell Immobilier

Bilan énergétique

Diagnostics énergetiques
A propos de ce bien Caractéristiques de ce bien
  • terrain 1 504 m²

Financier

Informations financières
Prix de vente honoraires TTC inclus 279 000 €

Simulation

Calcul des mensualités
* Champs obligatoires
SYELL IMMOBILIER Agence